Während dem Kacken den Abwasch machen? In dieser Wohnung geht das (fast)
Eine 3,5-Zimmer-Wohnung für 1'690 Franken im Monat? Check. In einer mittelgrossen Schweizer Stadt? Check. Erst dieses Jahr saniert? Trippel-Check! Bis hierhin dürfte die auf der Plattform Newhome ausgeschriebene Wohnung so manchen Wohnungssucher überzeugen. Doch ein kleines Detail stört das ansonsten hübsch anmutende Gesamtbild.
Nämlich befindet sich das Bad neben der Küche. Und zwar direkt neben der Küche. So direkt, dass man praktisch den Abwasch während des Toilettengangs erledigen kann.
Praktisch nahtlos an die «moderne Kochnische mit hochwertigen Armaturen und Geräten» folgt zuerst das Brünneli, dann die Toilette, und schliesslich die verglaste Dusche. In der Objektbeschreibung wird explizit der Plattenboden in der Küche hervorgehoben. Dass dieser gleich ins Bad weitergeht – und dass Küche und Bad nicht voneinander getrennt sind – wird gekonnt verschwiegen.
Überhaupt steht in der gesamten Beschreibung nichts von einem Bad, geschweige denn einem Badezimmer. Einzig ein Waschturm sei «auf dem gleichen Stockwerk vorhanden». Und schöne Heizkörper aus Gusseisen, die gäbe es auch. Zudem führt im Raum nebenan eine Treppe auf den «ausgebauten» Dachstock.
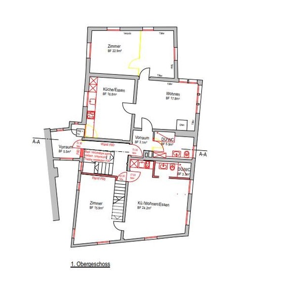
Kann es also wirklich sein, dass hier eine solch unhygienisch anmutende Bad-Küche-Kombination angeboten wird? Die Anbieterin konnte am Mittwochabend nicht für eine Stellungnahme erreicht werden. Allerdings gibt der Wohnungsplan einen Hinweis darauf, dass alles nicht ganz so wild ist, wie aus den Bildern hervorgeht. Nämlich sind auf diesem Lavabo, Toilette und Dusche durch eine Trennwand vom Rest des Raums separiert.
Wird diese Wand tatsächlich noch eingebaut? Beisst sie sich dann nicht mit dem zugegeben recht stilvoll geschwungenen Plattenboden? Und: warum wurden die Bilder ohne Wand auf die Plattform hochgeladen? Fragen über Fragen. Klar ist nur: im jetzigen Zustand ist diese Wohnung nichts für Menschen mit einem Mindestmass an hygienischen Ansprüchen. (cpf)
