Neubau für «alle» in Zürich-Wollishofen – Miete für 4,5-Zimmerwohnung erschlägt dich
Auf den ersten Blick wirkt das Angebot mehr als verlockend. Das Immobilienunternehmen Allreal baut an der Renggerstrasse 3 in Zürich-Wollishofen an bester Lage ein Haus mit 21 Mietwohnungen.
In 5 Minuten ist man bei der Landiwiese am Zürichsee, in 13 Minuten am Hauptbahnhof. Die ÖV-Anbindung ist top, zahlreiche Einkaufsmöglichkeiten und auch Schulen befinden sich in Gehdistanz. Der Autobahnanschluss ist ebenfalls nur eine Frage von wenigen Minuten.
Zürich-Wollishofen vereine das Beste aus zwei Welten: Stadtnähe und Erholungsqualität, schreibt Allreal auf der Projekt-Website. «Das Quartier ist bekannt für seine ruhige, grüne Umgebung», liest man weiter. In einem animierten Video kann man seine neue Traumwohnung bereits begutachten.
«Raum für alle»
Gebaut werde nach Minergie-Standards und mit Smart-Home-Technologien, die Grundrisse seien «hochwertig und grosszügig», elf Tiefgaragen-Einstellplätze stünden zur Verfügung. Dank eines Lifts seien alle Wohnungen barrierefrei zugänglich.
An wen richten sich die 21 Wohnungen, die ab April 2026 bezugsbereit sind? Allreal schreibt:
Ab 2190 Franken aufwärts
Nun ja, ganz alle dürften sich vom Angebot an der Renggerstrasse 3 nicht angesprochen fühlen. Die günstigste Wohnung, auf die man sich bewerben kann: eine 1,5-Zimmerwohnung im Erdgeschoss auf 43 Quadratmetern mit einer Loggia, die 6,8 Quadratmeter umfasst. Bruttomiete: 2190 Franken.
Nachfolgend einige Angebote, jeweils inklusive Nebenkosten:
Die günstigste 2,5-Zimmerwohnung (50 m² und 8,2 m2 Gartenanteil) gibt es für 2570 Franken brutto. Für die meisten der angebotenen 2,5-Zimmerwohnungen beträgt die monatliche Miete über 3000 Franken.
Für die teuerste, eine 2,5-Zimmer-Attikawohnung (68 m² Wohnfläche und 40,8 m² Terrasse), verlangt Allreal einen stolzen Brutto-Mietzins von 4530 Franken.
Für die günstigste 3,5-Zimmerwohnung müssen bereits 4160 Franken pro Monat hingeblättert werden. Dafür gibt es im Gartengeschoss 93 Quadratmeter Wohnfläche, 13 Quadratmeter Loggia und 33,2 Quadratmeter Gartenanteil.
Die teuerste 3,5-Zimmerwohnung, eine Attikawohnung, gibt es für 6370 Franken. Wohnen tut man auf 112 m², hinzu kommt eine Terrasse mit 45,4 Quadratmetern.
Immobilienfirma rechtfertigt sich
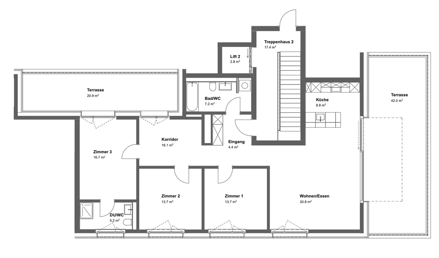
Interessiert man sich als Familie für eine 4,5-Zimmerwohnung, gibt es an der Renggerstrasse 3 in Zürich-Wollishofen ein einziges Angebot. Für die 4,5-Zimmer-Attikawohnung verlangt Allreal inklusive Nebenkosten satte 6790 Franken pro Monat (116 m² Wohnfläche, 62,9 m² Terrasse).
Ob zu den Wohnungen ein Kellerabteil dazugehört, ist nicht klar, weil mehrere unterschiedlich grosse Kellerräume ebenfalls vermietet werden. Diese Mieten bewegen sich zwischen 90 Franken (5,8 m²) und 220 Franken (16,5 m²) pro Monat.
watson hat bei Allreal nachgefragt, ob es wirklich die Ansicht vertrete, dass eine Wohnung mit einem Brutto-Mietzins von 6790 Franken Wohnraum für «alle» sei. Und wie das Immobilienunternehmen zur Kritik stehe, dass Mieten in dieser Höhe normalverdienende Personen und Familien aus der Stadt verdrängen würden.
Allreal nahm folgendermassen Stellung:
Bestehende Wohnungen seien keine zurückgebaut worden, weil das Neubauprojekt eine Geschäftsliegenschaft ersetze, heisst es von Allreal weiter. Die Wohnungen seien seit Anfang September ausgeschrieben.
